In January 2026, Uncovering the Tweed undertook a programme of recording at Cardrona Tower. Participants were introduced to historic building recording and trained in photography skills, historic building recording and techniques such as photogrammetry and laser scanning and how they can help create detailed records of old buildings.
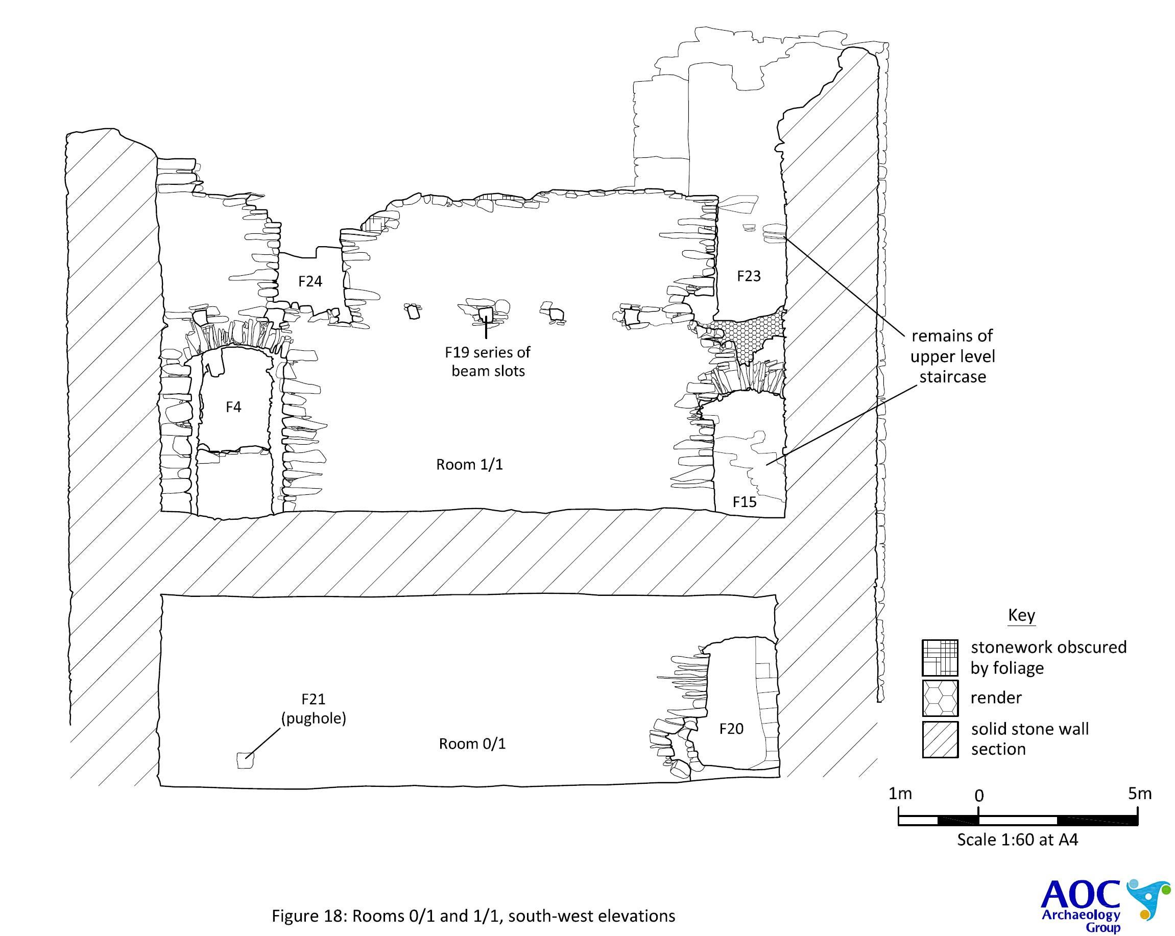
This survey built on a previous programme of recording that was undertaken by AOC in 2011 for Forestry and Land Scotland (FLS). AOC’s surveyors used laser scanning to create a 3D model of the ruin. Traditional elevation and plan drawings were then produced illustrating different elements of the building.
What remains at Cardrona?
Cardrona Tower is now a roofless shell and survives up to three‐four storeys in height, constructed of whinstone rubble throughout with larger rubble stones used for the quoins. The tower appears to be of a single phase of build, although there is a possible levelling course on the north‐west elevation. This may represent an area of rebuilding or simply a more deliberate method of construction.
The tower is rectangular in plan, with a small stair tower projection to the west on the south‐west side. The basic floor plan identify what is essentially a plain rectangular tower with a vaulted ground floor accessed via the south‐west from the main stair tower. There is first floor main hall over it, also accessed from the stair tower on the south‐west side. No more floors above this survive, although the wallheads rise up to almost the second floor level on the north‐west, north‐east and south‐west sides, whilst the south‐east gable survives almost up to roof height revealing a steeply pitched roof.
The survey and investigation undertaken for FLS have suggested that the tower was first constructed when the Govans became formal owners of the land in 1534. They may well have built the tower under the prompting of Parliament. In 1535, an Act was passed which required that men of the Borders with a ‘hundred pound’ of land should build a sufficient barmkin of stone and lime for defence of his lands together with a tower ‘…if he think it sufficient… [and that] all other landed men of smaller rent and revenue build peels and great strengths as they please…completed within two years…’ (quoted in Simpson 1961, 241). The use of the word ‘peel’ could mean anything from a protective palisade and barmkin to a fully‐fledged tower house.
On brief inspection, the main build of the tower looks to be all of one phase and it is assumed, based on current evidence, that it was occupied for at least 100 years. After the Restoration, better relations with England and political stability in general aided the transition from defensive stronghold to comfortable fortified house. This more than often led to the adaptation and expansion of the earlier towers, but at Cardrona, the Williamsons abandoned the building in favour of a new house to the east. Thereafter it was left to ruin, and little obvious changes or alterations were made.
Click through to view two measured drawings created from AOC’s survey. These serve as detailed records of the tower and its condition at that time.
Thanks to FLS for facilitating access to Cardrona Tower, and commissioning the original survey upon which this follow-up site visit and recording was based.